مجموعه دیتیل های انتخاب شده از کتاب ارزشمند دیتیل های سازه های فولادی Alan Hayward بخش دوم

مجموعه دیتیل های انتخاب شده از کتاب ارزشمند دیتیل های سازه های فولادی Alan Hayward بخش دوم

مجموعه دیتیل های انتخاب شده از کتاب ارزشمند دیتیل های سازه های فولادی Alan Hayward بخش دوم

این مجموعه حاصل عکس های منتخب ارزشمندی از کتاب فوق می باشد.

Steel Detailers' Manual 3rd Edition

by Alan Hayward (Author), Frank Weare (Author), A. C. Oakhill (Author)

Alan Hayward CEng, FICE, FIStructE is a steel specialist and consultant to Cass Hayward and Partners, Chepstow. Frank Weare MSc, DIC, DMA, CEng, FIStructE, MICE, MIHT, MBIM, formerly at the University of Westminster, is currently an independent consultant to various civil and structural engineering projects. Anthony Oakhill CEng, MICE has over 35 years' experience in the design and construction of steel bridges and structures. He currently works for Gifford and Partners', consulting engineers, Southampton.

This highly illustrated manual provides practical guidance on structural steelwork detailing. It:

· describes the common structural shapes in use and how they are joined to form members and complete structures

· explains detailing practice and conventions

· provides detailing data for standard sections, bolts and welds

· emphasises the importance of tolerances in order to achieve proper site fit-up

· discusses the important link between good detailing and construction costs

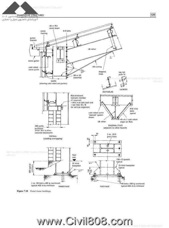
Examples of structures include single and multi-storey buildings, towers and bridges. The detailing shown will be suitable in principle for fabrication and erection in many countries, and the sizes shown will act as a guide to preliminary design.

The third edition has been revised to take account of the new Eurocodes on structural steel work, together with their National Annexes. The new edition also takes account of developments in 3-D modelling techniques and it includes more CAD standard library details.

Editorial Reviews

From the Back Cover

This highly illustrated manual provides practical guidance on structural steelwork detailing. It:

 

· describes the common structural shapes in use and how they are joined to form members and complete structures

· explains detailing practice and conventions

· provides detailing data for standard sections, bolts and welds

· emphasises the importance of tolerances in order to achieve proper site fit-up

· discusses the important link between good detailing and construction costs

 

Examples of structures include single and multi-storey buildings, towers and bridges. The detailing shown will be suitable in principle for fabrication and erection in many countries, and the sizes shown will act as a guide to preliminary design.

 

The third edition has been revised to take account of the new Eurocodes on structural steel work, together with their National Annexes. The new edition also takes account of developments in 3-D modelling techniques and it includes more CAD standard library details.

 

About the Author

Alan Hayward CEng, FICE, FIStructE is a steel specialist and consultant to Cass Hayward and Partners, Chepstow.

Frank Weare MSc, DIC, DMA, CEng, FIStructE, MICE, MIHT, MBIM, formerly at the University of Westminster, is currently an independent consultant to various civil and structural engineering projects.

Anthony Oakhill CEng, MICE has over 35 years' experience in the design and construction of steel bridges and structures. He currently works for Gifford and Partners', consulting engineers, Southampton.

  • Hardcover: 184 pages
  • Publisher: Wiley-Blackwell; 3 edition (May 6, 2011)
  • Language: English
  • ISBN-10: 1405175214
  • ISBN-13: 978-1405175210
مجموعه دیتیل های انتخاب شده از کتاب ارزشمند دیتیل های سازه های فولادی Alan Hayward بخش دوم
مجموعه دیتیل های انتخاب شده از کتاب ارزشمند دیتیل های سازه های فولادی Alan Hayward بخش دوم
مجموعه دیتیل های انتخاب شده از کتاب ارزشمند دیتیل های سازه های فولادی Alan Hayward بخش دوم
مجموعه دیتیل های انتخاب شده از کتاب ارزشمند دیتیل های سازه های فولادی Alan Hayward بخش دوم
مجموعه دیتیل های انتخاب شده از کتاب ارزشمند دیتیل های سازه های فولادی Alan Hayward بخش دوم
مجموعه دیتیل های انتخاب شده از کتاب ارزشمند دیتیل های سازه های فولادی Alan Hayward بخش دوم
مجموعه دیتیل های انتخاب شده از کتاب ارزشمند دیتیل های سازه های فولادی Alan Hayward بخش دوم
مجموعه دیتیل های انتخاب شده از کتاب ارزشمند دیتیل های سازه های فولادی Alan Hayward بخش دوم
مجموعه دیتیل های انتخاب شده از کتاب ارزشمند دیتیل های سازه های فولادی Alan Hayward بخش دوم
مجموعه دیتیل های انتخاب شده از کتاب ارزشمند دیتیل های سازه های فولادی Alan Hayward بخش دوم
مجموعه دیتیل های انتخاب شده از کتاب ارزشمند دیتیل های سازه های فولادی Alan Hayward بخش دوم
مجموعه دیتیل های انتخاب شده از کتاب ارزشمند دیتیل های سازه های فولادی Alan Hayward بخش دوم
مجموعه دیتیل های انتخاب شده از کتاب ارزشمند دیتیل های سازه های فولادی Alan Hayward بخش دوم
مجموعه دیتیل های انتخاب شده از کتاب ارزشمند دیتیل های سازه های فولادی Alan Hayward بخش دوم
مجموعه دیتیل های انتخاب شده از کتاب ارزشمند دیتیل های سازه های فولادی Alan Hayward بخش دوم
مجموعه دیتیل های انتخاب شده از کتاب ارزشمند دیتیل های سازه های فولادی Alan Hayward بخش دوم
مجموعه دیتیل های انتخاب شده از کتاب ارزشمند دیتیل های سازه های فولادی Alan Hayward بخش دوم
مجموعه دیتیل های انتخاب شده از کتاب ارزشمند دیتیل های سازه های فولادی Alan Hayward بخش دوم
مجموعه دیتیل های انتخاب شده از کتاب ارزشمند دیتیل های سازه های فولادی Alan Hayward بخش دوم
مجموعه دیتیل های انتخاب شده از کتاب ارزشمند دیتیل های سازه های فولادی Alan Hayward بخش دوم
مجموعه دیتیل های انتخاب شده از کتاب ارزشمند دیتیل های سازه های فولادی Alan Hayward بخش دوم
مجموعه دیتیل های انتخاب شده از کتاب ارزشمند دیتیل های سازه های فولادی Alan Hayward بخش دوم
مجموعه دیتیل های انتخاب شده از کتاب ارزشمند دیتیل های سازه های فولادی Alan Hayward بخش دوم
مجموعه دیتیل های انتخاب شده از کتاب ارزشمند دیتیل های سازه های فولادی Alan Hayward بخش دوم
مجموعه دیتیل های انتخاب شده از کتاب ارزشمند دیتیل های سازه های فولادی Alan Hayward بخش دوم
مجموعه دیتیل های انتخاب شده از کتاب ارزشمند دیتیل های سازه های فولادی Alan Hayward بخش دوم
مجموعه دیتیل های انتخاب شده از کتاب ارزشمند دیتیل های سازه های فولادی Alan Hayward بخش دوم
مجموعه دیتیل های انتخاب شده از کتاب ارزشمند دیتیل های سازه های فولادی Alan Hayward بخش دوم
مجموعه دیتیل های انتخاب شده از کتاب ارزشمند دیتیل های سازه های فولادی Alan Hayward بخش دوم
مجموعه دیتیل های انتخاب شده از کتاب ارزشمند دیتیل های سازه های فولادی Alan Hayward بخش دوم

صفحه‌ها