مجموعه عکس های طراحی، مدلینگ، اجرا و انواع پله ها کتاب ارزشمند Staircases - Structural Analysis and Design نوشته اساتید M.Y.H. Bangash, T. Bangash بخش ششم

مجموعه عکس های طراحی، مدلینگ، اجرا و انواع پله ها کتاب ارزشمند Staircases - Structural Analysis and Design نوشته اساتید M.Y.H. Bangash, T. Bangash بخش ششم

مجموعه عکس های طراحی، مدلینگ، اجرا و انواع پله ها کتاب ارزشمند Staircases - Structural Analysis and Design نوشته اساتید M.Y.H. Bangash, T. Bangash بخش ششم

اطلاعاتی که در  کتاب و عکس ها در مورد پله می توانید پیدا کنید، در کتاب دیگری نخواهید یافت.

از انواع پله های گرد، پله منحنی، پله تک بازو ، پله دو بازویی، پله سه بازویی، پله نعل اسبی، پله اسپیرال، پله بدون تکیه گاه، پله مارپیچ و غیره تا مدل سازی با انواع روش های تحلیل سازه ها و تا دیتیل های اجرایی پله های بتنی، فولادی و چوبی

Staircases - Structural Analysis and Design

M.Y.H. Bangash, T. Bangash

  • Hardcover: 348 pages
  • Publisher: CRC Press (1 Jan. 1999)
  • Language: English
  • ISBN-10: 9054106077
  • ISBN-13: 978-9054106074

Summary

In recent years both free-standing and geometric staircases have become quite popular. Many variations exist, such as spiral, helical, and elliptical staircases, and combinations of these. A number of researchers have come forward with different concepts in the fields of analytical and numerical design and of experimental methods and assessments. The aim of this book is to cover all these methods and to present them with greater simplicity to practising engineers.

Staircases is divided into five chapters: Specifications and basic data on staircases; Structural analysis of staircases – Classical methods; Structural analysis of staircases – Modern methods; Staircases and their analysis – A comparative study; Design analysis and structural detailing. Charts and graphs are included and numerous design examples are given of freestanding and other geometric staircases and of their elements and components. These examples are related to the case studies which were based on staircases that have already been constructed. All examples are checked using various Eurocodes.

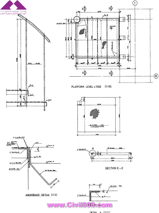
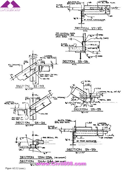
The book includes bibliographical references and is supported by two appendices, which will be of particular interest to those practising engineers who wish to make a comparative study of the different practices and code requirements used by various countries; detailed drawings are included from the USA, Britain, Europe and Asia. Staircases will serve as a useful text for teachers preparing design syllabi for undergraduate and post graduate courses. Each major section contains a full explanation which allows the book to be used by students and practising engineers, particularly those facing the formidable task of having to design/ detail complicated staircases with unusual boundary conditions. Contractors will also find this book useful in the preparation of construction drawings and manufacturers will be interested in the guidance given in the text.

مجموعه عکس های طراحی، مدلینگ، اجرا و انواع پله ها کتاب ارزشمند Staircases - Structural Analysis and Design نوشته اساتید M.Y.H. Bangash, T. Bangash بخش ششم
مجموعه عکس های طراحی، مدلینگ، اجرا و انواع پله ها کتاب ارزشمند Staircases - Structural Analysis and Design نوشته اساتید M.Y.H. Bangash, T. Bangash بخش ششم
مجموعه عکس های طراحی، مدلینگ، اجرا و انواع پله ها کتاب ارزشمند Staircases - Structural Analysis and Design نوشته اساتید M.Y.H. Bangash, T. Bangash بخش ششم
مجموعه عکس های طراحی، مدلینگ، اجرا و انواع پله ها کتاب ارزشمند Staircases - Structural Analysis and Design نوشته اساتید M.Y.H. Bangash, T. Bangash بخش ششم
مجموعه عکس های طراحی، مدلینگ، اجرا و انواع پله ها کتاب ارزشمند Staircases - Structural Analysis and Design نوشته اساتید M.Y.H. Bangash, T. Bangash بخش ششم
مجموعه عکس های طراحی، مدلینگ، اجرا و انواع پله ها کتاب ارزشمند Staircases - Structural Analysis and Design نوشته اساتید M.Y.H. Bangash, T. Bangash بخش ششم
مجموعه عکس های طراحی، مدلینگ، اجرا و انواع پله ها کتاب ارزشمند Staircases - Structural Analysis and Design نوشته اساتید M.Y.H. Bangash, T. Bangash بخش ششم
مجموعه عکس های طراحی، مدلینگ، اجرا و انواع پله ها کتاب ارزشمند Staircases - Structural Analysis and Design نوشته اساتید M.Y.H. Bangash, T. Bangash بخش ششم
مجموعه عکس های طراحی، مدلینگ، اجرا و انواع پله ها کتاب ارزشمند Staircases - Structural Analysis and Design نوشته اساتید M.Y.H. Bangash, T. Bangash بخش ششم
مجموعه عکس های طراحی، مدلینگ، اجرا و انواع پله ها کتاب ارزشمند Staircases - Structural Analysis and Design نوشته اساتید M.Y.H. Bangash, T. Bangash بخش ششم
مجموعه عکس های طراحی، مدلینگ، اجرا و انواع پله ها کتاب ارزشمند Staircases - Structural Analysis and Design نوشته اساتید M.Y.H. Bangash, T. Bangash بخش ششم
مجموعه عکس های طراحی، مدلینگ، اجرا و انواع پله ها کتاب ارزشمند Staircases - Structural Analysis and Design نوشته اساتید M.Y.H. Bangash, T. Bangash بخش ششم
مجموعه عکس های طراحی، مدلینگ، اجرا و انواع پله ها کتاب ارزشمند Staircases - Structural Analysis and Design نوشته اساتید M.Y.H. Bangash, T. Bangash بخش ششم
مجموعه عکس های طراحی، مدلینگ، اجرا و انواع پله ها کتاب ارزشمند Staircases - Structural Analysis and Design نوشته اساتید M.Y.H. Bangash, T. Bangash بخش ششم
مجموعه عکس های طراحی، مدلینگ، اجرا و انواع پله ها کتاب ارزشمند Staircases - Structural Analysis and Design نوشته اساتید M.Y.H. Bangash, T. Bangash بخش ششم
مجموعه عکس های طراحی، مدلینگ، اجرا و انواع پله ها کتاب ارزشمند Staircases - Structural Analysis and Design نوشته اساتید M.Y.H. Bangash, T. Bangash بخش ششم
مجموعه عکس های طراحی، مدلینگ، اجرا و انواع پله ها کتاب ارزشمند Staircases - Structural Analysis and Design نوشته اساتید M.Y.H. Bangash, T. Bangash بخش ششم
مجموعه عکس های طراحی، مدلینگ، اجرا و انواع پله ها کتاب ارزشمند Staircases - Structural Analysis and Design نوشته اساتید M.Y.H. Bangash, T. Bangash بخش ششم
مجموعه عکس های طراحی، مدلینگ، اجرا و انواع پله ها کتاب ارزشمند Staircases - Structural Analysis and Design نوشته اساتید M.Y.H. Bangash, T. Bangash بخش ششم
مجموعه عکس های طراحی، مدلینگ، اجرا و انواع پله ها کتاب ارزشمند Staircases - Structural Analysis and Design نوشته اساتید M.Y.H. Bangash, T. Bangash بخش ششم
مجموعه عکس های طراحی، مدلینگ، اجرا و انواع پله ها کتاب ارزشمند Staircases - Structural Analysis and Design نوشته اساتید M.Y.H. Bangash, T. Bangash بخش ششم
مجموعه عکس های طراحی، مدلینگ، اجرا و انواع پله ها کتاب ارزشمند Staircases - Structural Analysis and Design نوشته اساتید M.Y.H. Bangash, T. Bangash بخش ششم